24
$399,000 Sale
Listed 5 hours ago
35 GLEN Road
· 3
· 1.0
· 4
· 1000
Key Facts
Key facts for 35 GLEN Road
Property Type
House, House
Parking
Garage: Yes, 4 parking
MLS #
40772593
Size
1000 sqft
Basement
Unfinished, Crawl space (Unfinished)
Listed on
-
Lot size
-
Tax
-
Days on Market
-
Year Built
-
Maintenance Fee
$ 0/mo
Description
Fantastic opportunity in Kitchener’s sought-after Forest Hill neighbourhood! This 1.5-storey fixer-upper sits on a 45 x 103 ft lot and features 3 bedrooms, 1 bathroom, and parking for 3 cars (with potential for a 4th by removing the external shop). With solid bones, no rental items, and plenty of ro...om for updates, it’s an ideal project for renovators or buyers looking to add value. Close to excellent schools, trails, and parks, this home offers great potential in a family-friendly area. (id:10452)
Similar Properties (No results)
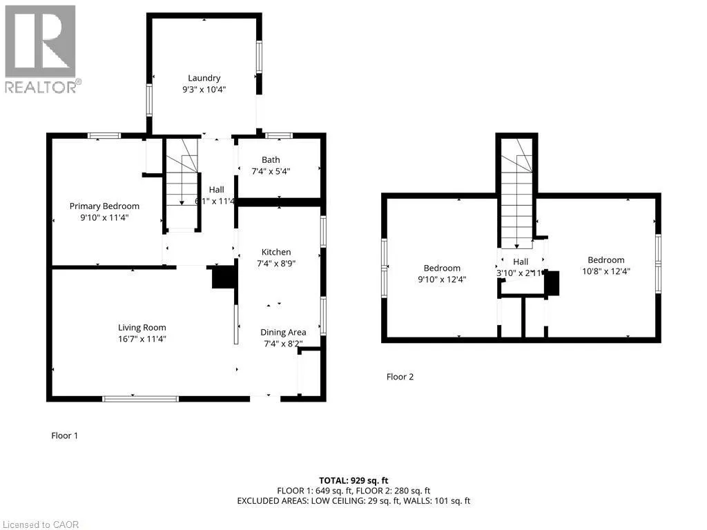
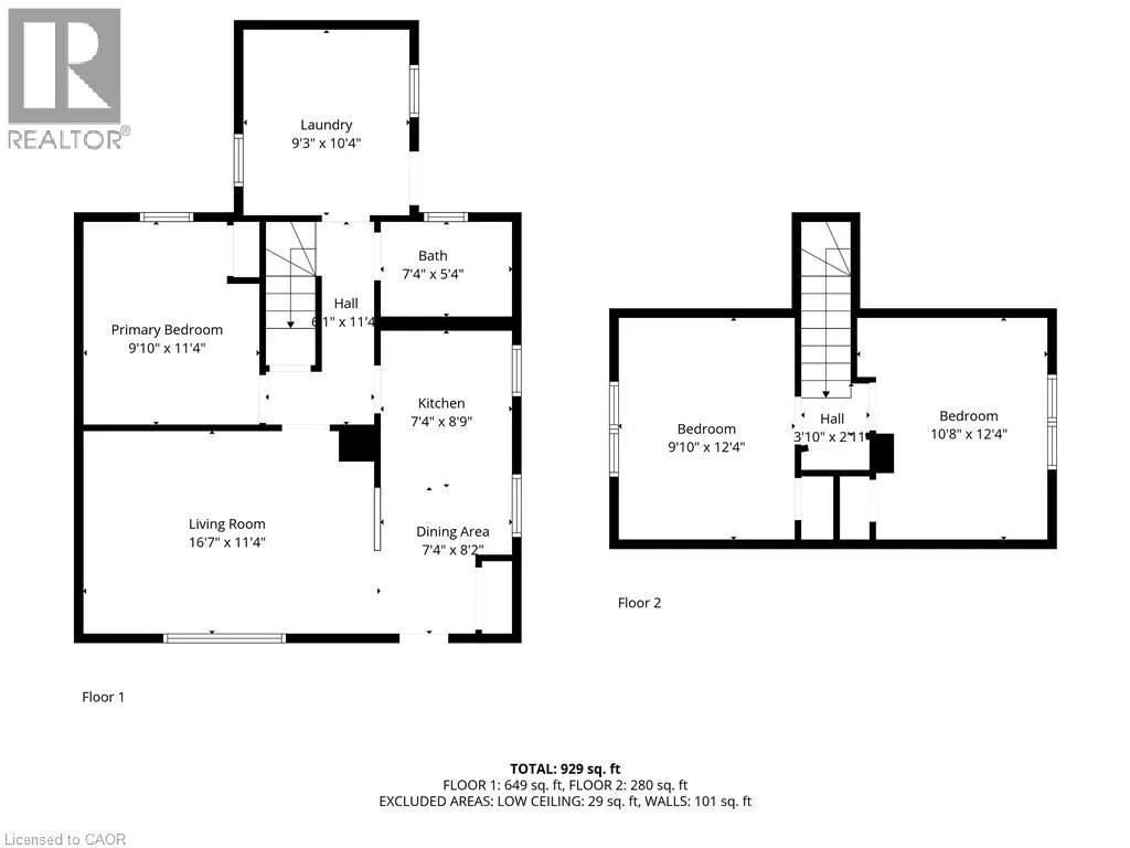
Room Types
4pc Bathroom
-
Dimensions 5'4'' x 7'4''
39.11 sqft
Bedroom
-
Dimensions 12'4'' x 10'8''
131.56 sqft
Bedroom
-
Dimensions 12'4'' x 9'10''
121.28 sqft
Listing courtesy of: EXP REALTY
This REALTOR.ca listing content is owned and licensed by REALTOR® members of The Canadian Real Estate Association.